127 mq
3
2
Giardino privato
Centralizzato - Contacalorie
D

Descrizione

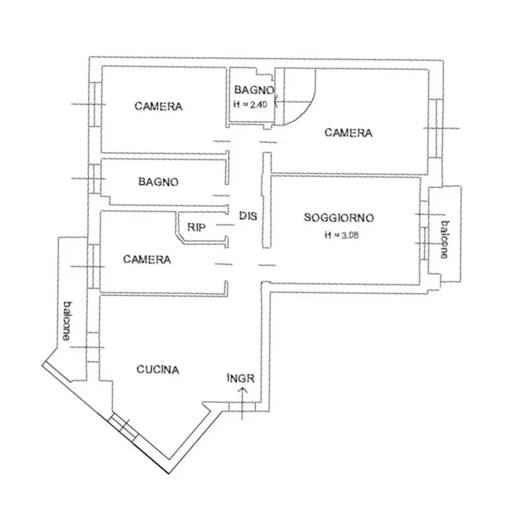
Rif. BC15125 - PIAZZALE GENOVA - In Condominio signorile con portineria e servito da ascensore proponiamo ampio appartamento al terzo piano completamente ristrutturato. L'appartamento è composto da ingresso, ampia cucina abitabile con balcone, soggiorno con balcone, una camera padronale con bagno al suo interno, due camere matrimoniali e un bagno finestrato. RISCALDAMENTO CENTRALIZZATO CON CONTABILIZZATORI Aria condizionata con pompa di calore. Completa l'immobile un ampia cantina. *INFORMATIVA PRIVACY* Per tutelare la privacy dei nostri clienti, vi informiamo che, in alcuni casi, L'INDIRIZZO INDICATO DELL'IMMOBILE E' SOLITAMENTE APPROSSIMATIVO. Maggiori dettagli verranno SEMPRE forniti SOLO dopo contatto telefonico. Per qualsiasi informazione e per visite potete contattarci ai riferimenti sotto indicati: Si riceve SEMPRE SOLO ESCLUSIVAMENTE con appuntamento da contatto telefonico o mail. dal Lunedì al Venerdì dalle 9.00 alle 12.30 e dalle 14.00 alle 18.00 Sabato mattina SOLO PER APPUNTAMENTI - Domenica CHIUSO TEL. 0523.49.08.18 MAIL: info@soluzionecasapc.it; MAIL: affitti@soluzionecasapc.it; SOLUZIONECASA Piacenza - Via Monte Penice 18 - 29121 Piacenza

Altre caratteristiche

Stato Immobile
Ristrutturato
Anno costruzione
1970
Vani
4
Tipo di cucina
Abitabile
Balconi
1
Metratura totale balconi
10
Terrazze / Logge
1
Piano
3
Piani totali della palazzina
7
Condizionamento
Installato
Spese condominiali
€ 350 €/mese
Ascensore
Tipologia Immobile
Appartamento
Categoria Immobile
Case e Appartamenti
Contatta Agenzia
Proposto da: SOLUZIONE CASA PIACENZA

Quotazioni immobiliari per Piazzale Genova - Piacenza