230 mq
3
3
Garage/Posto Auto
Giardino privato
Centralizzato - Contacalorie
C

Descrizione

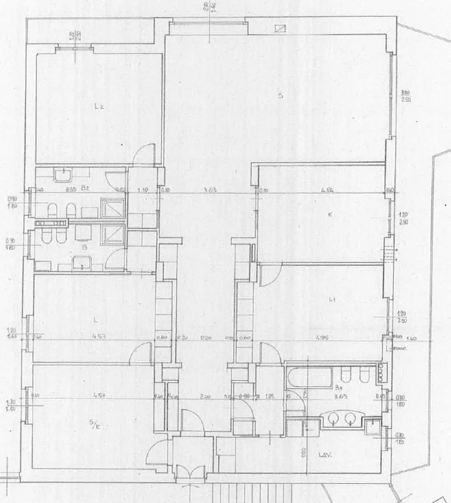
Rif. GC81026 - PUBBLICO PASSEGGIO - In signorile condominio APPARTAMENTO DI MQ 230, RISTRUTTURATO NEL 2003. Appartamento attualmente già predisposto in due abitazioni di cui una BILOCALE e una TRILOCALE con entrambe ingresso separato e divise internamente come due abitazioni separate, ma semplicemente ricollegabili con apertura d'accesso in corridoio. Appartamento in pianta rettangolare riunibile in un'unica abitazione semplicemente riaprendo il collegamento dal corridoio. Terrazza e balcone con AFFACCIO SU VIALE ALBERATO, cantina e garage completano la proposta. AFFACCIO UNICO, BEL CONTESTO. *INFORMATIVA PRIVACY*Per tutelare la privacy dei nostri clienti, vi informiamo che, in alcuni casi, L'INDIRIZZO INDICATO DELL'IMMOBILE E' SOLITAMENTE APPROSSIMATIVO. Maggiori dettagli verranno SEMPRE forniti SOLO dopo contatto telefonico. Per qualsiasi informazione e per visite potete contattarci ai riferimenti sotto indicati: Si riceve SEMPRE SOLO ESCLUSIVAMENTE con appuntamento da contatto telefonico o mail. Dal Lunedì al Venerdì dalle 9.00 alle 12.30 e dalle 14.00 alle 18.00Sabato mattina SOLO PER APPUNTAMENTI - Domenica CHIUSOTEL. 0523.49.08.18MAIL: info@soluzionecasapc.it;MAIL: affitti@soluzionecasapc.it;SOLUZIONECASA Piacenza - Via Monte Penice 18 - 29121 Piacenza.

Altre caratteristiche

Stato Immobile
Ristrutturato
Anno costruzione
1961
Vani
4
Tipo di cucina
Abitabile
Balconi
1
Metratura totale balconi
12
Terrazze / Logge
1
Metratura totale terrazze / logge
8
Piano
2
Piani totali della palazzina
8
Spese condominiali
€ 400 €/mese
Ascensore
Tipologia Immobile
Appartamento
Categoria Immobile
Case e Appartamenti
Contatta Agenzia
Proposto da: SOLUZIONE CASA PIACENZA

Quotazioni immobiliari per Pubblico Passeggio - Piacenza