115 mq
3
2
Garage/Posto Auto
Giardino privato
Autonomo
A4

Descrizione

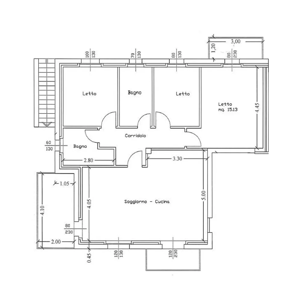
Rif. AC27925 - GOSSOLENGO: "Classe A" - CONSEGNA 2026 - Appartamento con doppio balcone e terrazza coperta E GARAGE DOPPIO. Alto capitolato. Composto da soggiorno con angolo cottura (possibilità di separare la cucina), disimpegno, 3 camere e doppi servizi, per un totale di 115 mq. Per qualsiasi informazione e per visite potete contattarci ai riferimenti sotto indicati: SOLUZIONECASA Piacenza - Via Monte Penice 18 - 29121 Piacenza telefono 0523.49.08.18 - e.mail info@soluzionecasapc.it Siamo disponibili dal Lunedì al Venerdì dalle 9.00 alle 12.30 e dalle 15.00 alle 19.00 Sabato solo mattina - Domenica Chiuso Si riceve SOLO con appuntamento.

Altre caratteristiche

Stato Immobile
In ottime condizioni
Anno costruzione
2026
Vani
4
Tipo di cucina
Angolo Cottura
Balconi
1
Metratura totale balconi
8
Terrazze / Logge
1
Metratura totale terrazze / logge
8
Piano
Terra
Piani totali della palazzina
2
Tipologia Immobile
Appartamento
Categoria Immobile
Case e Appartamenti
Contatta Agenzia
Proposto da: SOLUZIONE CASA PIACENZA

Quotazioni immobiliari per Via I Maggio - Gossolengo