128 mq
3
2
Giardino privato
Autonomo
A4

Descrizione

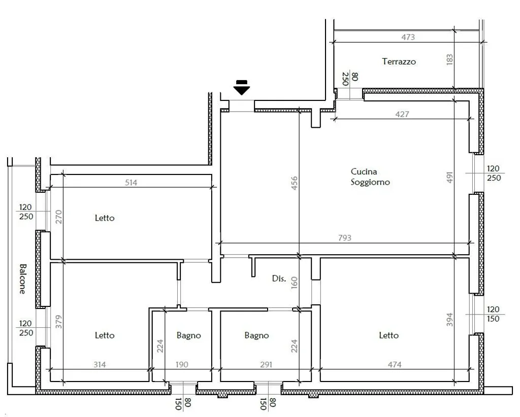
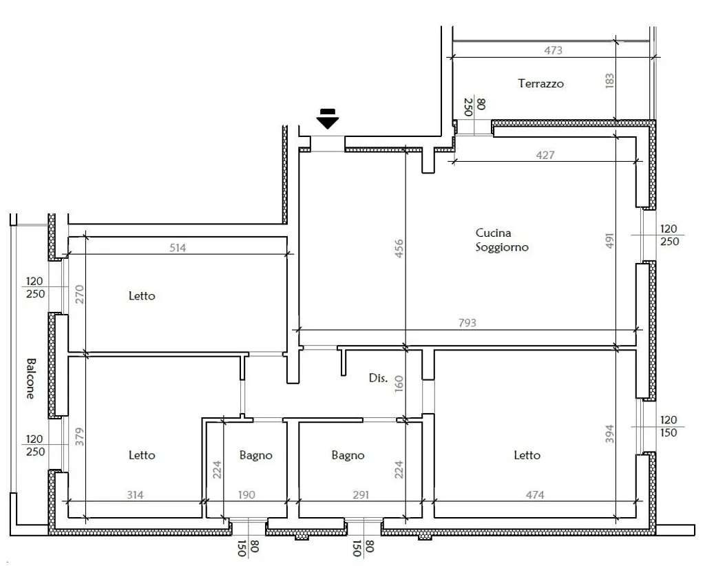
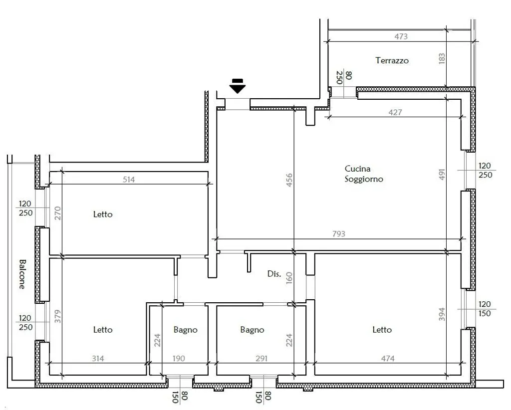
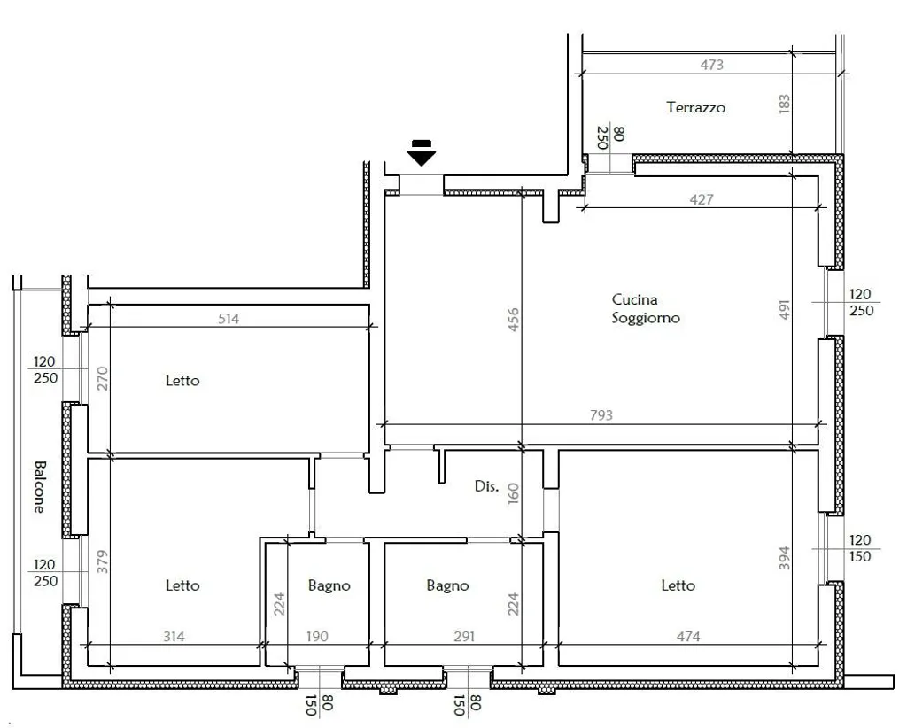
Rif. AC10326_2 - ZONA VIA VENETO - E' iniziata la riqualificazione in Classe A4 di una palazzina che verrà trasformata a nuovo in una delle zone più richieste della città. Verranno realizzati 11 appartamenti in piccolo contesto con ascensore, disposti tra piano terra (di cui alcuni con giardino), primo e secondo con balconi e terrazzi e, per concludere, un unico attico al terzo piano. I lavori sono iniziarti e termineranno alla fine dell'estate 2027. Sono aperte le prenotazioni: in questa fase, oltre a poter scegliere l'appartamento più adatto, è possibile scegliere in primis l'orientamento, l'esposizione e soprattutto la disposizione interna su misura per le proprie esigenze. I materiali e le finiture sono all'interno del ricco capitolato selezionato per questo intervento. La tecnologia sarà esattamente quella attuale con il riscaldamento a pavimento e aria condizionata in pompa di calore autonoma con l'eliminazione completa del gas oltre ad impianto fotovoltaico per 1,5 kW/h individuale per ogni unità. Garage singoli e doppi sono disponibili per essere abbinati alle unità abitative. In questo annuncio proponiamo QUADRILOCALE nr. 7 posto al piano primo. Di seguito l'elenco delle porzioni disponibili in base a metratura commerciale e prezzo (garage esclusi): BILOCALE con cantina di mq 65 ad € 165.000 TRILOCALI con cantina a partire da mq 78 mq fino a mq 112 a partire da € 220.000 QUADRILOCALI di mq 128 con terrazzo ad € 375.000 ATTICO di mq 200 con terrazzi ad € 580.000 Le immagini dei rendering esterni corrispondono a quanto di progetto programmato mentre i rendering interni sono puramente dimostrativi realizzati in base alle proposte di arredo presenti sulle planimetrie.. *INFORMATIVA PRIVACY*Per tutelare la privacy dei nostri clienti, vi informiamo che, in alcuni casi, L'INDIRIZZO INDICATO DELL'IMMOBILE E' SOLITAMENTE APPROSSIMATIVO. Maggiori dettagli verranno SEMPRE forniti SOLO dopo contatto telefonico. Per qualsiasi informazione e per visite potete contattarci ai riferimenti sotto indicati: Si riceve SEMPRE SOLO ESCLUSIVAMENTE con appuntamento da contatto telefonico o mail. dal Lunedì al Venerdì dalle 9.00 alle 12.30 e dalle 14.00 alle 18.00Sabato mattina SOLO PER APPUNTAMENTI - Domenica CHIUSOTEL. 0523.49.08.18MAIL: info@soluzionecasapc.it;MAIL: affitti@soluzionecasapc.it;SOLUZIONECASA Piacenza - Via Monte Penice 18 - 29121 Piacenza

Altre caratteristiche

Anno costruzione
2026
Vani
4
Tipo di cucina
Angolo Cottura
Balconi
1
Metratura totale balconi
8
Terrazze / Logge
1
Metratura totale terrazze / logge
8
Piano
1
Piani totali della palazzina
3
Condizionamento
Installato
Ascensore
Tipologia Immobile
Appartamento
Categoria Immobile
Case e Appartamenti
Contatta Agenzia
Proposto da: SOLUZIONE CASA PIACENZA

Quotazioni immobiliari per Via Veneto - Piacenza