2

Descrizione

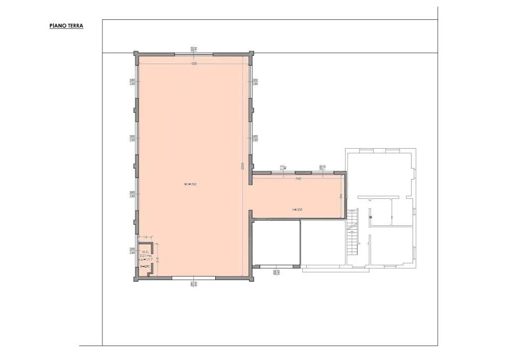
Rif. 2460UF60652 - GAZZOLA - vendesi Capannone/Deposito di circa 250 mq. Richiesta Eu. 65.000 Classe Energetica: G

Altre caratteristiche

Categoria Immobile
Commerciali e Attività
Tipologia Immobile
Laboratorio / Magazzino
Metri Quadri
250 mq
Bagni
1
Stato Immobile
In discrete condizioni
Contatta Agenzia
Proposto da: PRIMA CASA PIACENZA

Quotazioni immobiliari per Gazzola