100 mq
2
2
Garage/Posto Auto
Giardino privato
Autonomo
A2

Descrizione

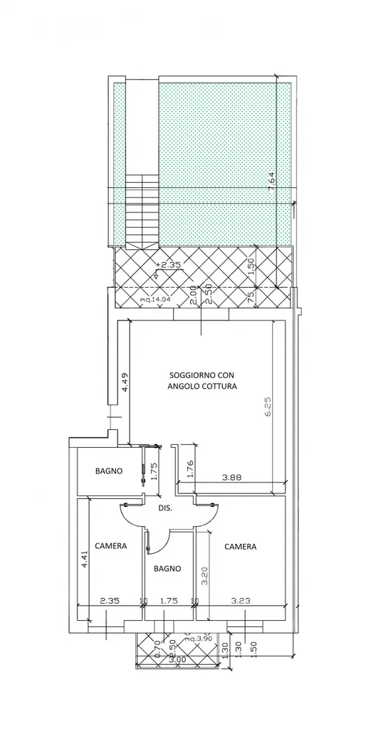
Rif. AP25325 - PONTENURE A 12 KM DA FIORENZUOLA D'ARDA: In zona di espansione del paese intervento di nuova costruzione in CLASSE A. APPARTAMENTO in quadrifamigliare con ingresso indipendente e giardino privato, composto da soggiorno con angolo cottura e portico, doppi servizi, due camere da letto e balcone. Completano la proprietà una cantina e box auto doppio. Possibilità di scelta finiture interne. CONSEGNA FINE 2026. *INFORMATIVA PRIVACY* Per tutelare la privacy dei nostri clienti, vi informiamo che, in alcuni casi, L'INDIRIZZO INDICATO DELL'IMMOBILE E' SOLITAMENTE APPROSSIMATIVO. Maggiori dettagli verranno SEMPRE forniti SOLO dopo contatto telefonico. Si riceve SEMPRE SOLO ESCLUSIVAMENTE con appuntamento da contatto telefonico o mail. dal Lunedì al Venerdì dalle 9.00 alle 12.30 e dalle 14.00 alle 18.00 Sabato mattina SOLO PER APPUNTAMENTI - Domenica CHIUSO TEL. 0523.49.08.18 MAIL: info@soluzionecasapc.it; MAIL: affitti@soluzionecasapc.it; SOLUZIONECASA Piacenza - Via Monte Penice 18 - 29121 Piacenza

Altre caratteristiche

Stato Immobile
In ottime condizioni
Anno costruzione
2025
Vani
3
Tipo di cucina
Angolo Cottura
Balconi
1
Metratura totale balconi
4
Terrazze / Logge
1
Metratura totale terrazze / logge
14
Metratura giardino
40
Piano
Terra
Piani totali della palazzina
2
Condizionamento
Installato
Tipologia Immobile
Appartamento
Categoria Immobile
Case e Appartamenti
Contatta Agenzia
Proposto da: SOLUZIONE CASA PIACENZA

Quotazioni immobiliari per Via Emilia ss9 - Fiorenzuola d'Arda