90 mq
2
1
Autonomo
E

Descrizione

Rif. T31663 - Trovare casa in città può essere complicato, ma ogni tanto arriva quella soluzione che ti fa dire: “Ecco, è questa.”
Un appartamento comodo, ben distribuito e già pronto per essere vissuto — ideale per chi cerca praticità e vuole restare vicino a tutto: stazione, servizi, negozi e centro.
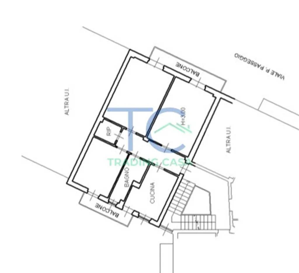
Al secondo piano, ti accoglie un ingresso ordinato, una cucina con balcone perfetta per la colazione del mattino, un soggiorno luminoso con affaccio esterno, due camere da letto spaziose e un bagno funzionale.
Ogni ambiente ha la dimensione giusta per vivere bene, senza sprechi ma con tutto quello che serve.
A completare la proprietà, una cantina privata ideale per riporre bici, valigie o tutto ciò che vuoi tenere in ordine.
Una casa già pronta, solida e funzionale, perfetta per chi vuole vivere la città con comodità, senza rinunciare al comfort quotidiano.

Chiama subito e vieni a scoprirla: potrebbe essere l’appartamento giusto per te, al momento giusto.

Planimetrie

Altre caratteristiche

Stato Immobile
Non rilevato
Vani
3
Tipo di cucina
Abitabile
Balconi
2
Posto auto
Nessuno
Piano
2
Spese condominiali
€ 1200 €/anno
Cantina
Tipologia Immobile
Appartamento
Categoria Immobile
Case e Appartamenti
Contatta Agenzia
Proposto da: TRADING CASA

Quotazioni immobiliari per Via Scalabrini - Piacenza