113 mq
2
1
Garage/Posto Auto
Giardino privato
Autonomo
A4

Descrizione

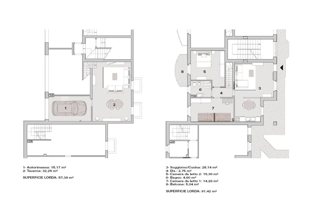
Rif. AP271124 - PODENZANO - NUOVA REALIZZAZIONE CLASSE A4 - FULL ELECTRIC CON FOTOVOLTAICO - Moderno appartamento al piano terra di una nuova costruzione in fase avanzata, con consegna prevista ESTATE 2025. L'immobile si estende su una superficie totale di 82 mq ed è composto da soggiorno con cucina abitabile, disimpegno, 2 camere da letto e un bagno finestrato, oltre a GIARDINO PRIVATO, taverna al piano interrato e autorimessa singola. Alto capitolato con possibilità di scelta delle finiture interne. Impianto di riscaldamento a pavimento, raffrescamento con predisposizione di split nella zona giorno e zona notte. *INFORMATIVA PRIVACY* Per tutelare la privacy dei nostri clienti, vi informiamo che, in alcuni casi, L'INDIRIZZO INDICATO DELL'IMMOBILE E' SOLITAMENTE APPROSSIMATIVO. Maggiori dettagli verranno SEMPRE forniti SOLO dopo contatto telefonico. Si riceve SEMPRE SOLO ESCLUSIVAMENTE con appuntamento da contatto telefonico o mail. dal Lunedì al Venerdì dalle 9.00 alle 12.30 e dalle 14.00 alle 18.00 Sabato mattina SOLO PER APPUNTAMENTI - Domenica CHIUSO TEL. 0523.49.08.18 MAIL: info@soluzionecasapc.it; MAIL: affitti@soluzionecasapc.it; SOLUZIONECASA Piacenza - Via Monte Penice 18 - 29121 Piacenza

Altre caratteristiche

Anno costruzione
2025
Vani
3
Tipo di cucina
Abitabile
Balconi
1
Metratura totale balconi
5
Terrazze / Logge
1
Metratura giardino
15
Piano
Terra
Piani totali della palazzina
2
Tipologia Immobile
Appartamento
Categoria Immobile
Case e Appartamenti
Contatta Agenzia
Proposto da: SOLUZIONE CASA PIACENZA

Quotazioni immobiliari per Via Don Molinari - Podenzano