13

Descrizione

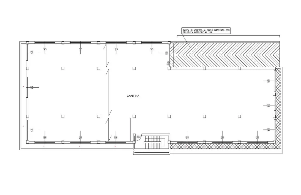
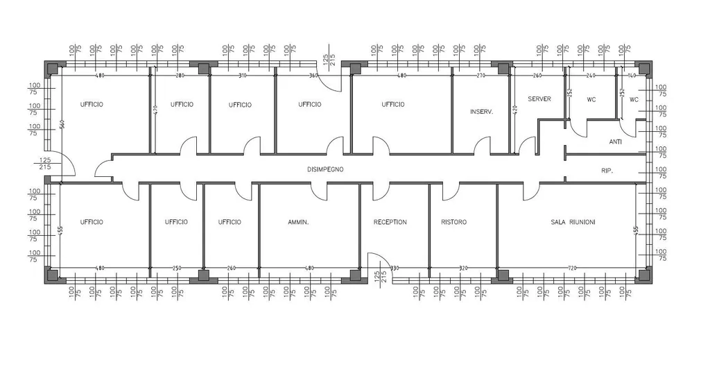
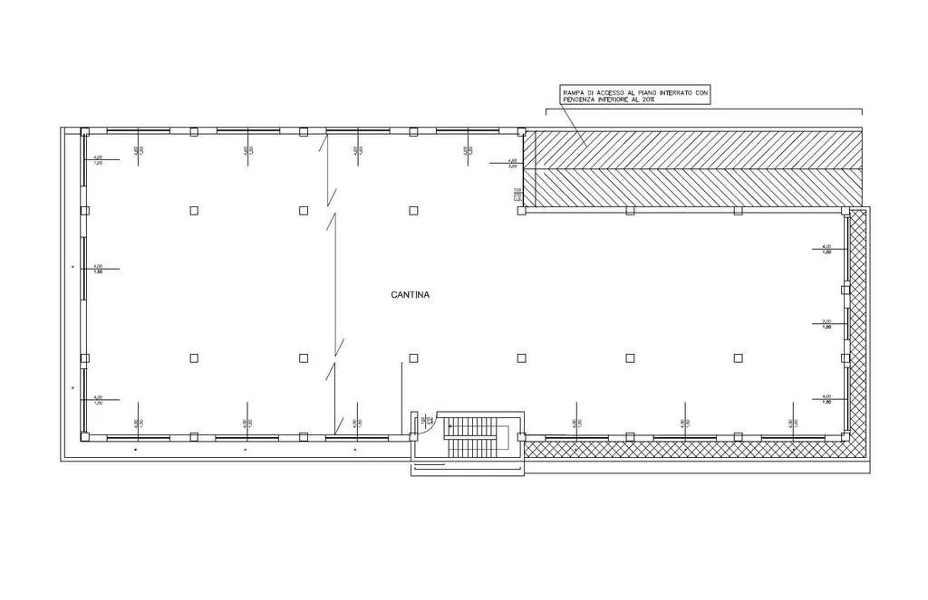
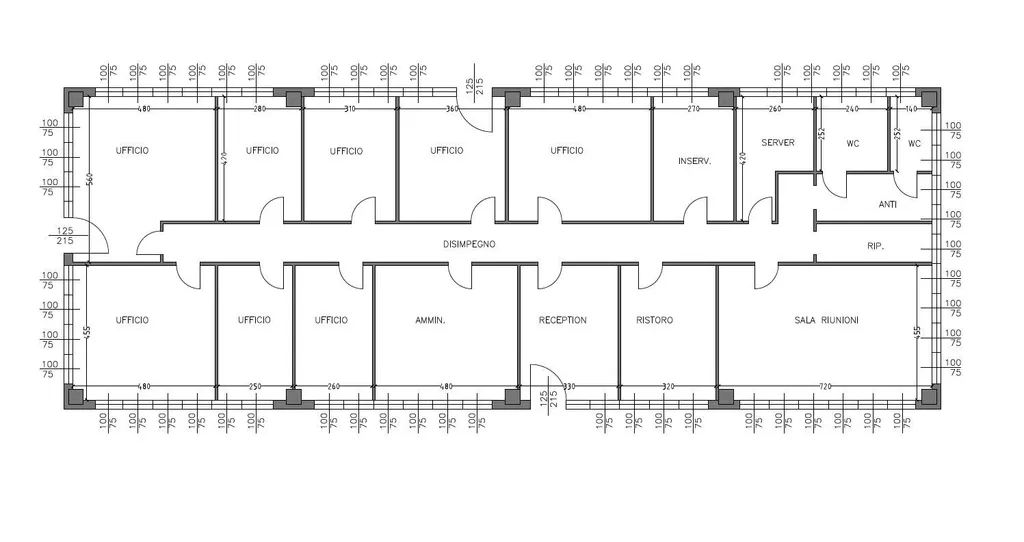
Rif. MC81024 - VEGGIOLETTA: Adiacente casello Piacenza Ovest - In recente complesso spazioso UFFICIO (anno 2019) di 290 mq circa, soluzione ideale per coloro che desiderano uno spazio di lavoro ampio, ben tenuto e in una posizione strategica ideale per il parcheggio. Attualmente in locazione, sarà disponibile dal 1 GENNAIO 2025. Si trova al primo piano dell'edificio con un totale di 10 locali ad uso ufficio oltre a reception, sala riunioni, sala server, zona ristoro e doppi servizi. Canone annuo richiesto Euro 30.000 oltre iva di legge. Disponibile anche magazzino associato di 900 mq circa sito al piano seminterrato. Richiesta canone annuo per il magazzino pari ad Euro 12.000 oltre iva di legge. *INFORMATIVA PRIVACY* Per tutelare la privacy dei nostri clienti, vi informiamo che, in alcuni casi, L'INDIRIZZO INDICATO DELL'IMMOBILE E' SOLITAMENTE APPROSSIMATIVO. Maggiori dettagli verranno SEMPRE forniti SOLO dopo contatto telefonico. Si riceve SEMPRE SOLO ESCLUSIVAMENTE con appuntamento da contatto telefonico o mail. dal Lunedì al Venerdì dalle 9.00 alle 12.30 e dalle 14.00 alle 18.00 Sabato mattina SOLO PER APPUNTAMENTI - Domenica CHIUSO TEL. 0523.49.08.18 MAIL: info@soluzionecasapc.it; MAIL: affitti@soluzionecasapc.it; SOLUZIONECASA Piacenza - Via Monte Penice 18 - 29121 Piacenza

Altre caratteristiche

Categoria Immobile
Commerciali e Attività
Tipologia Immobile
Ufficio / Studio
Metri Quadri
290 mq
Classe energetica
D
Riscaldamento
Autonomo
Piani totali della palazzina
2
Piano
1
Bagni
2
Stato Immobile
In ottime condizioni
Contatta Agenzia
Proposto da: SOLUZIONE CASA PIACENZA