400 mq
3
2
Garage/Posto Auto
Giardino privato
Autonomo
F

Descrizione

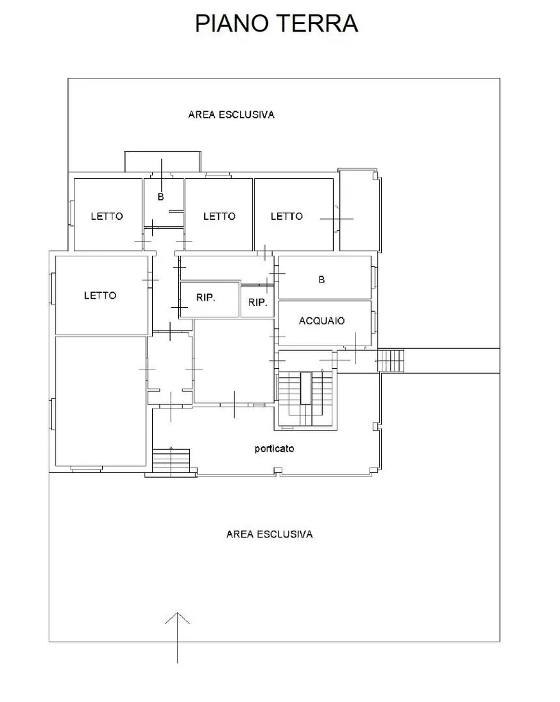
Rif. MC05825 - VEGGIOLETTA - Circondata dal verde con affaccio su giardini pubblici, VILLA COMPLETAMENTE INDIPENDENTE di grandissima metratura, risalente ai primi anni '80, COMPOSTA DA DUE UNITA' IMMOBILIARI OLTRE SEMINTERRATO, 2 AUTORIMESSE di cui una doppia, ampio cortile e GIARDINO PRIVATO CIRCOSTANTE. Al piano principale appartamento di 260 mq su unico livello con 4 camere da letto, doppi servizi, al piano superiore collegato da vano scala appartamento di mq 70. Al piano seminterrato magazzino, locale tecnico, lavanderia, cantina e due autorimesse sempre collegate da vano scala indipendente. Possibilità di unica abitazione per famiglia numerosa o di mantenere la struttura bifamiliare attuale. Posizione ideale con affacci liberi e totale indipendenza. *INFORMATIVA PRIVACY*Per tutelare la privacy dei nostri clienti, vi informiamo che, in alcuni casi, L'INDIRIZZO INDICATO DELL'IMMOBILE E' SOLITAMENTE APPROSSIMATIVO. Maggiori dettagli verranno SEMPRE forniti SOLO dopo contatto telefonico. Per qualsiasi informazione e per visite potete contattarci ai riferimenti sotto indicati: Si riceve SEMPRE SOLO ESCLUSIVAMENTE con appuntamento da contatto telefonico o mail. dal Lunedì al Venerdì dalle 9.00 alle 12.30 e dalle 14.00 alle 18.00Sabato mattina SOLO PER APPUNTAMENTI - Domenica CHIUSOTEL. 0523.49.08.18MAIL: info@soluzionecasapc.it;MAIL: affitti@soluzionecasapc.it;SOLUZIONECASA Piacenza - Via Monte Penice 18 - 29121 Piacenza

Altre caratteristiche

Stato Immobile
In buone condizioni
Anno costruzione
1983
Vani
4
Tipo di cucina
Abitabile
Balconi
1
Terrazze / Logge
1
Metratura totale terrazze / logge
25
Metratura giardino
300
Piano
Su più livelli
Piani totali della palazzina
3
Condizionamento
Installato
Tipologia Immobile
Villa singola
Categoria Immobile
Case e Appartamenti
Contatta Agenzia
Proposto da: SOLUZIONE CASA PIACENZA

Quotazioni immobiliari per Via Franceschini - Piacenza