115 mq
2
2
Giardino privato
Autonomo
A4

Descrizione

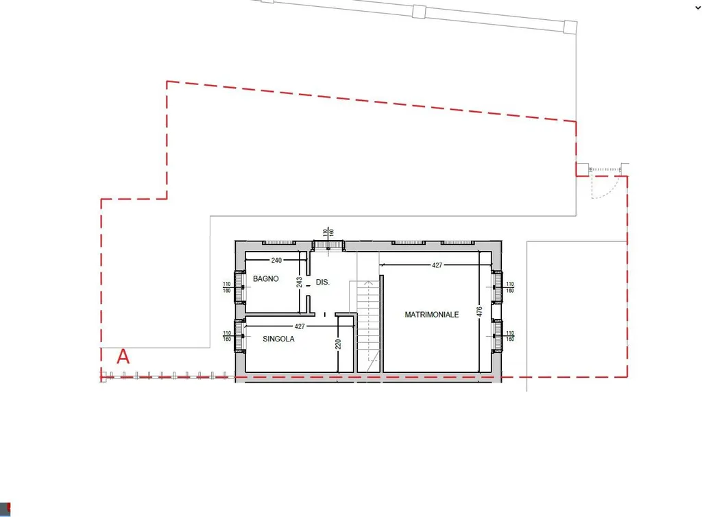
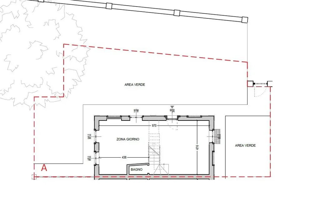
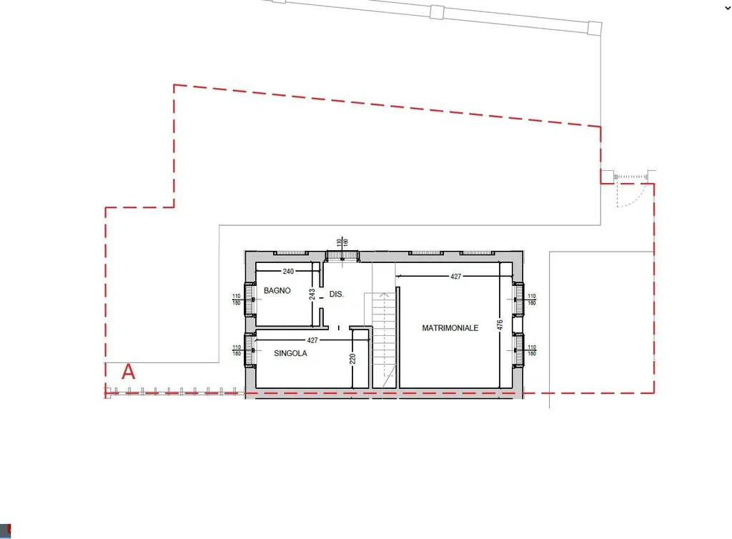
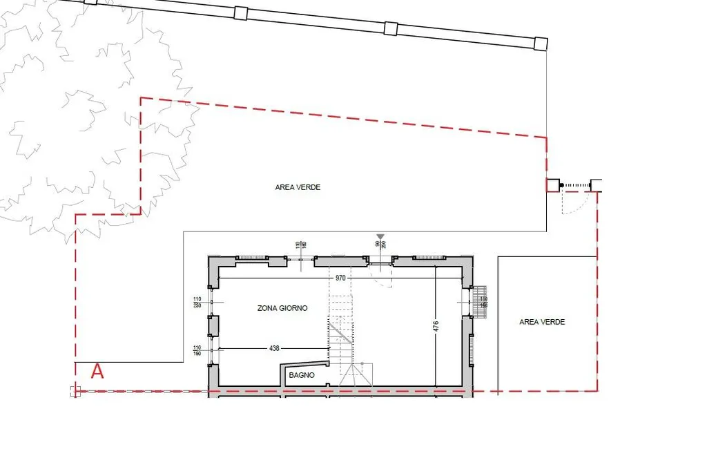
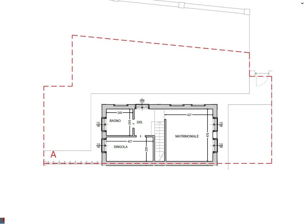
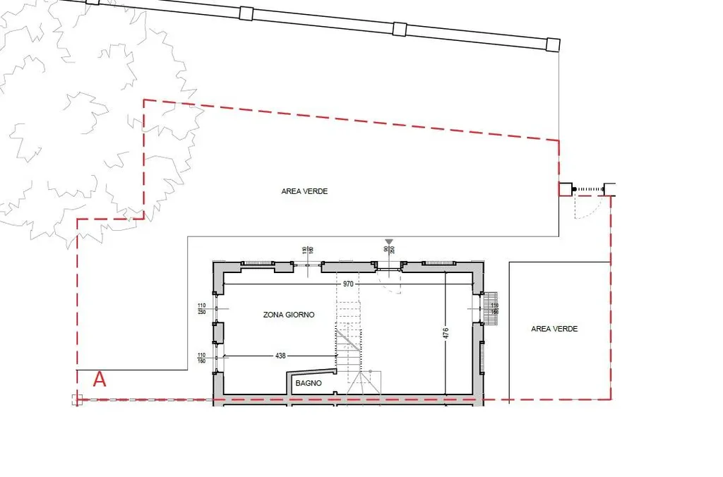
Rif. MP221025 - LOC. TURRO - CLASSE A - ULTIME DUE VILLE! All'interno di una corte rurale tipica sapientemente ristrutturata e recuperata dai fabbricati esistenti, VILLE NUOVE perfettamente inserite nel contesto ,ma con costruzione e tecnologie di attuale concezione con il massimo comfort e il minimo consumo energetico. Disponibili ultime ville nuove a schiera e di testa disposte su due livelli per complessivi mq 95 oltre a taverna al piano seminterrato, con locale tecnico e lavanderia. Riscaldamento a pavimento e raffrescamento tutto in pompa di calore. NO GAS. Possibilità di posto auto coperto nella corte ad Euro 10.000,00. *INFORMATIVA PRIVACY*Per tutelare la privacy dei nostri clienti, vi informiamo che, in alcuni casi, L'INDIRIZZO INDICATO DELL'IMMOBILE E' SOLITAMENTE APPROSSIMATIVO. Maggiori dettagli verranno SEMPRE forniti SOLO dopo contatto telefonico. Per qualsiasi informazione e per visite potete contattarci ai riferimenti sotto indicati: Si riceve SEMPRE SOLO ESCLUSIVAMENTE con appuntamento da contatto telefonico o mail. Dal Lunedì al Venerdì dalle 9.00 alle 12.30 e dalle 14.00 alle 18.00Sabato mattina SOLO PER APPUNTAMENTI - Domenica CHIUSOTEL. 0523.49.08.18MAIL: info@soluzionecasapc.it;MAIL: affitti@soluzionecasapc.it;SOLUZIONECASA Piacenza - Via Monte Penice 18 - 29121 Piacenza.

Video

Altre caratteristiche

Stato Immobile
In ottime condizioni
Anno costruzione
2024
Vani
3
Tipo di cucina
Angolo Cottura
Balconi
1
Terrazze / Logge
1
Metratura totale terrazze / logge
20
Metratura giardino
20
Piano
Su più livelli
Piani totali della palazzina
2
Condizionamento
Installato
Spese condominiali
€ 50 €/mese
Tipologia Immobile
Villa singola
Categoria Immobile
Case e Appartamenti
Contatta Agenzia
Proposto da: SOLUZIONE CASA PIACENZA

Quotazioni immobiliari per Loc. Turro - Podenzano